24小时咨询热线:073185583227
精心设计 品质优良 完善售后

专业生产、安装各类噪控设备

消声设备

分类导航
SF型烧结风机出口消声器

SF型烧结风机出口消声器

  用途
  主要用于降低各种型号烧结机主抽风机出口的空气动力性噪声。
  技术特点
  1、采用阻性片式结构,设计合理,性能稳定可靠。
  2、消声量:20-30dB(A)。
  3、压力损失:≤200Pa。
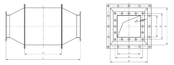
  规格选用表
型号 适用风量 外形尺寸(㎜) 法兰尺寸(㎜) 消声量dB(A) 压力
规格 (m3/h) L L1 A×B a×b 螺孔尺寸 损失(Pa)


a1×b1 n-φ
SF-1 96000-150000 3500 2000 2200×2400 1200×1815 1320×1935 54-φ30 >20 ≤200
SF-2 195000-285000 4000 2000 3000×3500 1800×2500 1920×2620 68-φ30 >20 ≤200
SF-3 390000-429000 4500 2500 3300×3800 2000×2800 2120×2920 76-φ30 >25 ≤200
SF-4 480000-540000 5000 3000 3600×4000 2600×3000 2720×3120 84-φ30 >30 ≤200
SF-5 720000-780000 5500 3000 4200×4600 3200×3400 3320×3520 86-φ30 >30 ≤200
SF-6 960000-1020000 6500 3500 4600×5200 3400×4000 3520×4120 88-φ30 >30 ≤200
  外形示意图
湖南恒净环保实业有限公司,湖南消声设备销售,隔声设备,吸声设备

  使用说明
  1、选用消声器应根据风机风量配套。
  2、安装时需有足够强度的支架,并有防振减振措施。
  3、本公司可根据用户要求进行消声器非标设计。
首页
地图
电话
咨询

详细地址: 湖南省长沙市天心区芙蓉南路一段758号和庄A1栋1017室